A CLOSER LOOK

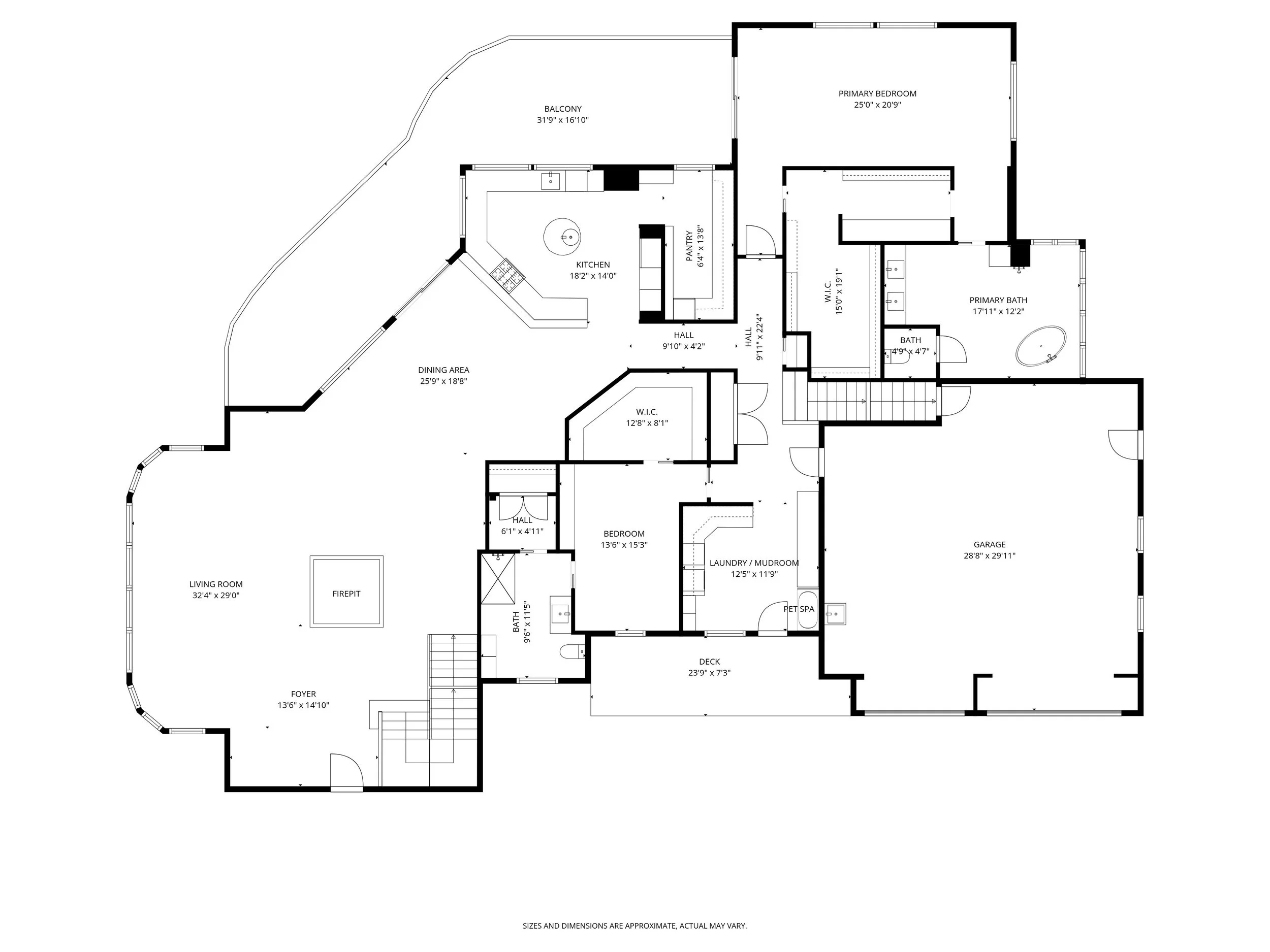
FLOORPLANS